SCIA ENGINEER
Navigation überspringen
Projekte
Referenzen
Über Uns
Kontakt
Navigation überspringen
Impressum
| English
Beratung
Entwurf
Optimierung
Baueingabe
Bauphysik
Statik/Dynamik
Ausführungsplanung
Kultur + Freizeit
Projekte
>
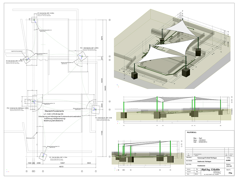
Textilbauten
>
2D-Membranen
>
Sonnensegel FB Nürtingen 2013
>
Details: Sonnensegel FB Nürtingen 2013
Bitte klicken Sie auf eines der Bilder, um die Galerie zu öffnen.
<<
Zurück